1 объявление

20 166 666 сум/м²
Метро: Хамида Алимджана, Пушкинская
Ташкент, Мирзо-Улугбекский р-н, махалля Мирзакалон Исмоилий, ул. Асака
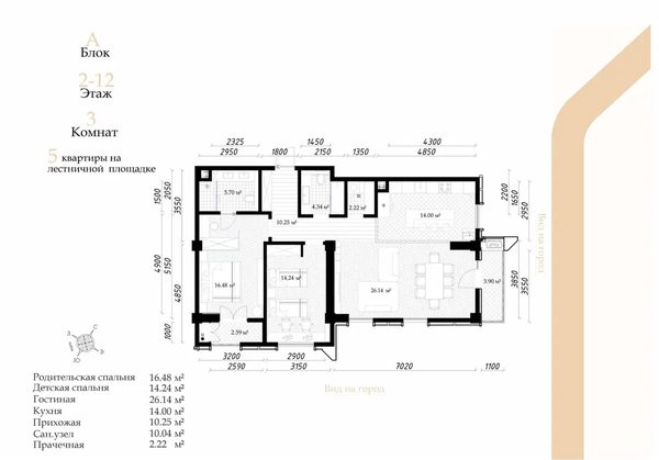
Продается ЖК Darkhan Avenue 3/12/12 предчистовая отделка 96м2 НОВОСТРОЙКА 3/12/12 ЖК DARKHAN AVENUE Площадь: 96м2 Состояние: white box Два санузла Кадастр есть Закрытый двор без машин ЦЕНА: 160 000 у.е. +998978770077 Алексей
2 апреля 2026 г.